❋
Project Description
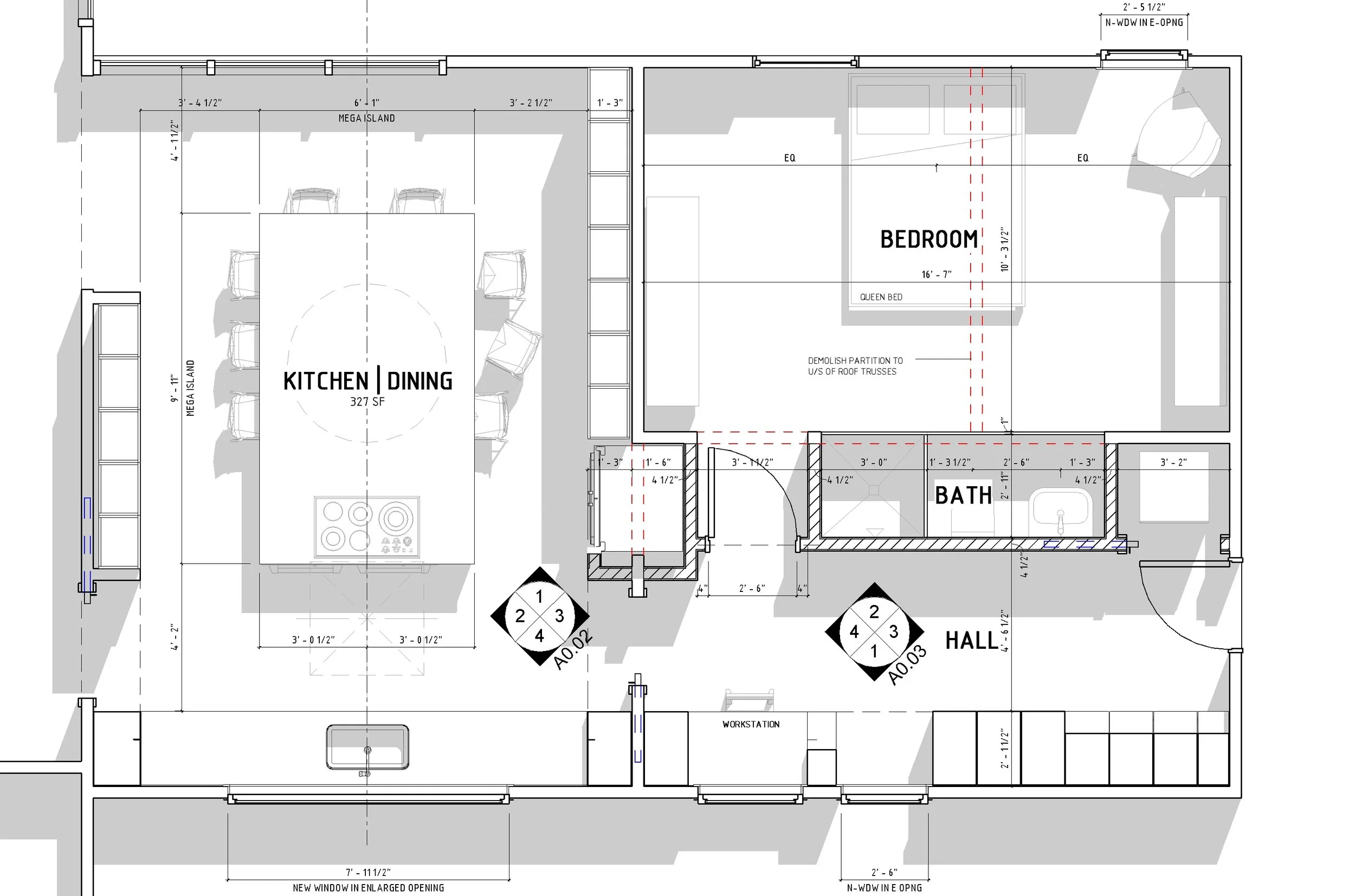
A mega-island becomes the social and spatial anchor of the home; less a piece of cabinetry than a piece of inhabitable architecture. Scaled generously to accommodate multiple modes of use, it supports daily rituals and large family gatherings with equal ease: food preparation, shared meals, conversation, homework, and celebration occur simultaneously without hierarchy. Its mass and materiality ground the room, while carefully articulated edges, overhangs, and integrated seating invite lingering rather than passing through. Power, storage, and appliances are discreetly embedded, allowing the surface to remain calm and legible—a continuous plane for gathering. In this way, the mega-island functions as a modern hearth: a place where the family naturally convenes, where activity overlaps, and where the life of the house is most fully expressed.
❋ Intentional Structure
We blend guided moments, open exploration, and space to reflect—so the experience feels both focused and fluid.
❋ Collaborative Energy
Connection is a core part of the process. You’ll learn just as much from the group as from the content itself.
❋ Expert Facilitation
Led by experienced guides who know how to hold space, encourage participation, and keep things moving with purpose.
❋ A Supportive Space
Our events prioritize comfort, safety, and respect—so you can show up as you are and fully engage in the process.

