❋
Two Townhomes
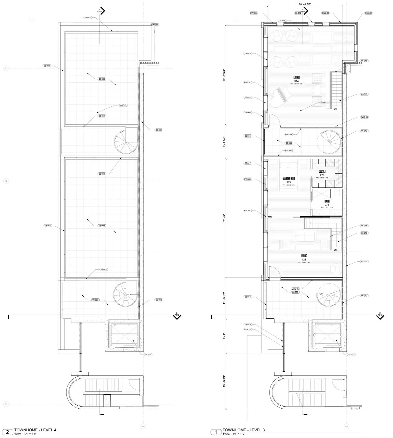
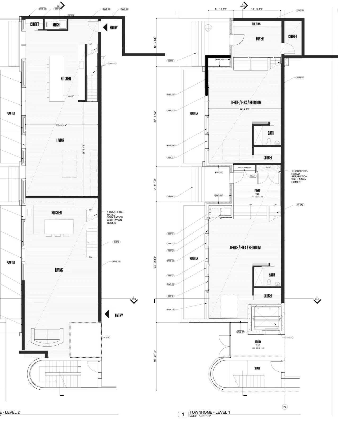
Project Description
The Brush Park Townhomes is conceived as a deliberate pause within its urban context; an infill residential project that prioritizes spatial clarity, material restraint, and experiential sequencing. The design responds to the scale and rhythm of the historic Brush Park neighborhood while introducing a contemporary architectural language grounded in proportion, articulation, and light.
The townhouse is organized as a progression of thresholds from public to private, with massing articulated to reduce perceived scale and establish a clear relationship to the street. Facade modulation, depth of opening, and controlled transparency create a layered envelope that balances privacy with daylight access. Window placement and proportion are calibrated to frame views, admit diffuse light, and support a calm interior atmosphere rather than visual excess.
Circulation is intentional and legible, allowing spaces to unfold gradually and encouraging moments of pause and reflection. Material selections emphasize durability, tactility, and longevity, reinforcing a sense of permanence while allowing the architecture to age with use.
The Brush Park Townhomes achieves its character through restraint and precision. The project positions architecture as a supportive framework for daily life; one that fosters a sense of retreat within the city, enabling residents to slow their pace, reconnect with their environment, and engage more fully with space and time.
The building is carefully articulated to break down its mass and reinforce a human-scaled rhythm along the street. A clear structural frame establishes order, while deeply set masonry infill and vertical window bays introduce depth, shadow, and variation across the façade. Subtle shifts in plane and material define individual dwellings without fragmenting the whole, allowing the composition to read as both unified and granular. This layered articulation mediates between the historic fabric of Brush Park and a contemporary architectural expression; simultaneously grounded, legible, and refined.
❋ Intentional Structure
We blend guided moments, open exploration, and space to reflect—so the experience feels both focused and fluid.
❋ Collaborative Energy
Connection is a core part of the process. You’ll learn just as much from the group as from the content itself.
❋ Expert Facilitation
Led by experienced guides who know how to hold space, encourage participation, and keep things moving with purpose.
❋ A Supportive Space
Our events prioritize comfort, safety, and respect—so you can show up as you are and fully engage in the process.

