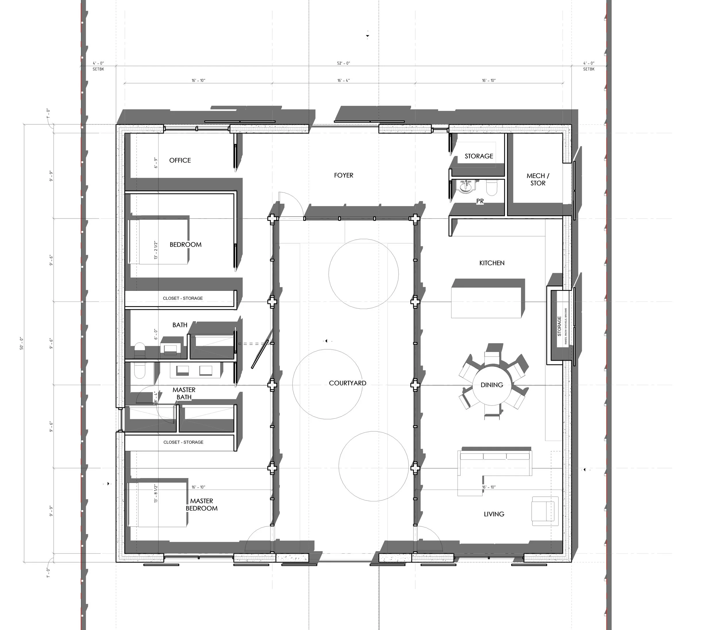
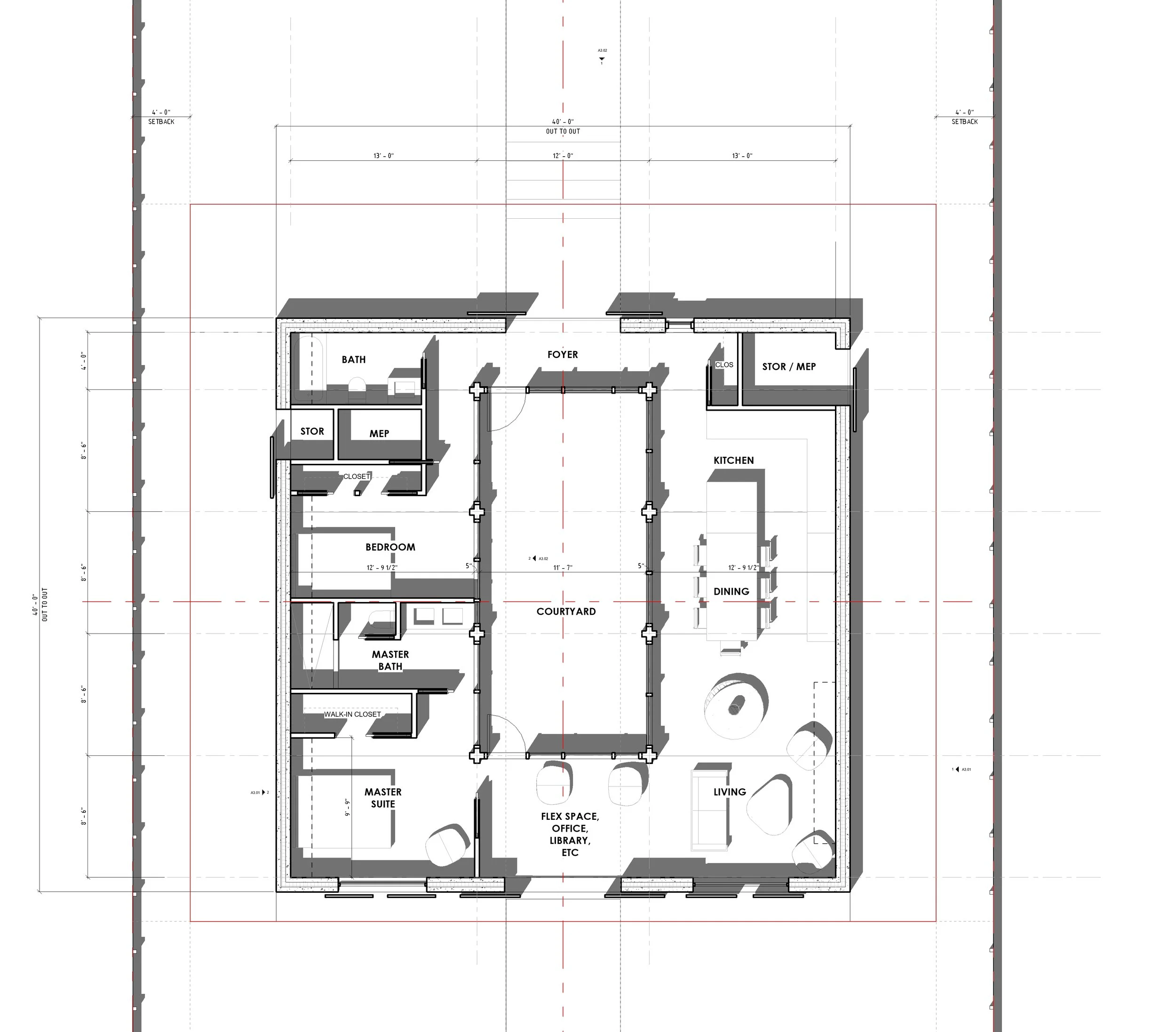
Courtyard Home

  • The Courtyard Home is conceived as a compact, one story concrete dwelling organized around a central open court, using disciplined massing and material restraint to create a calm, inward focused residential environment. Defined by a simple box plan, the project emphasizes spatial clarity, light, and privacy while maintaining a strong, monolithic exterior presence.

    The home is organized horizontally, with living spaces wrapping the courtyard to establish continuous relationships between interior and exterior. The courtyard functions as the primary organizing element, bringing daylight, air, and landscape deep into the plan while creating a protected outdoor room that anchors daily life. This inward orientation reinforces privacy from the street while fostering visual and spatial continuity across the home.
    Facade articulation is minimal and deliberate. The exterior concrete envelope is largely solid, reinforcing durability and permanence, with openings precisely located in response to orientation and program. Sliding panels are integrated at window openings as a secondary façade layer, allowing occupants to modulate light, privacy, and ventilation throughout the day. When closed, the panels reinforce the building’s solid mass. When open, they reveal framed glazing that connects living spaces directly to the courtyard and surrounding landscape.

    Interior spaces are defined by warmth and material contrast. Exposed timber ceilings, wall surfaces, and built in elements line the interior, softening the concrete shell and establishing a tactile, human scaled environment. This timber lined interior extends toward window openings, reinforcing the threshold between the protected interior and the outdoor courtyard. Light filtered through the sliding panels animates the wood surfaces, creating shifting patterns of shadow and warmth throughout the day.

    Toward the courtyard, glazing becomes more generous and operable, dissolving boundaries between inside and outside. The sliding panels act as environmental moderators, filtering sunlight, controlling views, and introducing subtle movement to an otherwise restrained elevation. Their operation allows the house to shift between enclosure and openness without altering its fundamental form.

    Interior organization prioritizes flexibility and collective living, with primary spaces opening directly to the courtyard and private rooms positioned along its perimeter. Circulation unfolds along the courtyard edge, reinforcing daily ritual through repeated engagement with light, shadow, and landscape, conditions further shaped by the adjustable façade and timber interior.

    Material selections emphasize robustness and longevity. A durable concrete exterior establishes permanence and thermal stability, while the exposed timber interior provides warmth and acoustic comfort. Through reduction rather than formal gesture, the Courtyard Home positions architecture as a precise framework for inhabitation, balancing solidity and softness, control and openness, and fostering a heightened awareness of place.

❋ Intentional Structure

I blended guided moments, open exploration, and space for reflection so the experience feels both focused and fluid. Movement shifts between direction and release, offering clarity where needed and openness where discovery is encouraged. An exposed mass timber structure anchors this sequence, providing warmth, rhythm, and human scale while organizing light, views, and circulation as an integral part of the architecture.

❋ Collaborative Energy

Connection is a core part of my process. I work closely with each client, building a collaborative relationship where ideas are shaped through conversation and listening. Understanding grows not only from the work itself, but from the ongoing exchange that informs decisions, clarifies intent, and strengthens the final outcome.

❋ Expert Facilitation

Led by experienced guides who know how to hold space, encourage participation, and keep things moving with purpose, the process balances structure with openness. Care is taken to create an environment where ideas can surface naturally, voices feel heard, and momentum is maintained without forcing outcomes. Guidance is present but not prescriptive, allowing the work to progress with clarity while leaving room for reflection, dialogue, and meaningful contribution.

❋ A Supportive Space

Events prioritize comfort, safety, and respect, creating an environment where you can show up as you are and fully engage in the process. Attention is given to pace, setting, and clear expectations, so participation feels supported rather than pressured. By fostering trust and care throughout, the experience encourages openness, focus, and meaningful engagement from start to finish.